Description
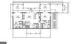
***THIS IS YOUR OWN 5.5 ACRE ESTATE WITH MAGNIFICENT NATURE VIEWS*** CLICK ON THE (V) INSTAVIEW BUTTON ABOVE FOR A VIDEO ON THIS HOME. Enjoy the essence of luxury in your BRAND NEW ultra energy efficient MADISON plan in the beautiful GATED community of Lakeland Estates. This 5.5 acre luxury estate will include a pathway DIRECTLY TO THE SHORES OF CARTERS LAKE, the deepest lake in Georgia, where you enjoy fishing, camping, hiking and mountain biking. This innovative home boasts an OPEN DESIGN that combines the chef's kitchen with family room fun. Enjoy BREATHTAKING mountain views through a wall of windows highlighted by 24 foot ceilings. This is one of the most energy efficient homes ever built in Georgia, featuring ICF CONSTRUCTION which is 3 times more energy efficient than current building methods. Additionally, the home includes HOMEGA CEILING AND FLOOR INSULATION, HYDRONIC RADIANT FLOOR HEATING and an ERV ENERGY RECLAIMING SYSTEM. You meet directly with our award-winning team at Clearwater Construction to discuss the finishing of your mountain home. RECEIVE A $25,000 BONUS BY UTILIZING YOUR OWN CONSTRUCTION TO PERMANENT LOAN FINANCING...ask me how! The walls and roof are already constructed and final completion is expected early 2026. So, invite friends and family over to enjoy your new mountain villa and take them for a tour of ELLIJAY'S NINE NEARBY WINERIES.....the best Georgia has to offer. The home also has a LOFT area which could be converted to an additional sleeping area.
-
3BEDS
-
5.52ACRES
-
3BATHS
-
11/2 BATHS
-
3,327SQFT
-
$299$/SQFT
School Information
Description
***THIS IS YOUR OWN 5.5 ACRE ESTATE WITH MAGNIFICENT NATURE VIEWS*** CLICK ON THE (V) INSTAVIEW BUTTON ABOVE FOR A VIDEO ON THIS HOME. Enjoy the essence of luxury in your BRAND NEW ultra energy efficient MADISON plan in the beautiful GATED community of Lakeland Estates. This 5.5 acre luxury estate will include a pathway DIRECTLY TO THE SHORES OF CARTERS LAKE, the deepest lake in Georgia, where you enjoy fishing, camping, hiking and mountain biking. This innovative home boasts an OPEN DESIGN that combines the chef's kitchen with family room fun. Enjoy BREATHTAKING mountain views through a wall of windows highlighted by 24 foot ceilings. This is one of the most energy efficient homes ever built in Georgia, featuring ICF CONSTRUCTION which is 3 times more energy efficient than current building methods. Additionally, the home includes HOMEGA CEILING AND FLOOR INSULATION, HYDRONIC RADIANT FLOOR HEATING and an ERV ENERGY RECLAIMING SYSTEM. You meet directly with our award-winning team at Clearwater Construction to discuss the finishing of your mountain home. RECEIVE A $25,000 BONUS BY UTILIZING YOUR OWN CONSTRUCTION TO PERMANENT LOAN FINANCING...ask me how! The walls and roof are already constructed and final completion is expected early 2026. So, invite friends and family over to enjoy your new mountain villa and take them for a tour of ELLIJAY'S NINE NEARBY WINERIES.....the best Georgia has to offer. The home also has a LOFT area which could be converted to an additional sleeping area.
Related Properties
© 2025 Georgia Multiple Listing Service, Inc. All rights reserved. The data relating to real estate for sale or lease on this web site comes in part from GAMLS. Real estate listings held by brokerage firms other than Team Reign | Give Back Real Estate | eXp Realty are marked with the GAMLS logo or an abbreviated logo and detailed information about them includes the name of the listing broker. IDX information is provided exclusively for consumers' personal, non-commercial use and may not be used for any purpose other than to identify prospective properties consumers may be interested in purchasing. Information is deemed reliable but is not guaranteed accurate by GAMLS or Team Reign | Give Back Real Estate | eXp Realty. Data last updated: 2025-11-10T12:10:48.533.