Description
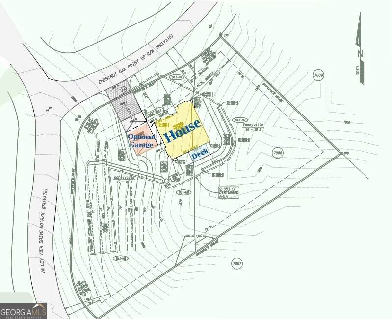
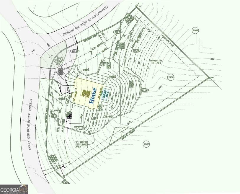
Ready To Build. Level 3 Soil Tests complete. Site Plan and 3-Bedroom 2.5 Bathroom 2-Story 2,440 Square Feet Home Plan available, or Sellers can built for you (see alternative Single Family Home Listing for details) or bring your own plan and/or builder. Easy build lot within minutes of the main gate and all amenities. There are zero new construction homes in Big Canoe priced under $795K. Our floorplan maximizes space utilization and lot orientation with a view down a valley with seasonal spring. Big Canoe is located just 90 minutes north of Atlanta and nestled in the foothills of the Appalachian Mountain Range, and is teaming with amenities including a 27-Hole Golf Course and Clubhouse, three Lakes and a Marina, a Beach Club, Swimming Pools, a Sandy Beach, Fishing, numerous Parks & Trails, and more. The Marina rents electric pontoon boats and the lake is stocked with fresh trout. The community also provides numerous court sports options, including tennis, pickleball, and bocce, ensuring ample opportunities for recreation and social interaction, while the wellness center provides state-of-the-art fitness equipment and a spa. The newly renovated multimillion-dollar clubhouse serves as a central hub for dining and events. Nearby places to visit of note: Historic Downtown Jasper, Gibbs Gardens, Cairn View Winery, Fainting Goat Vineyards & Winery, B.J. Reece Orchards, and Amicalola Falls. This is a great opportunity to build and own a home in Big Canoe. Ideal for permanent or 2nd home and/or recreational investment property. Listing Agent related to Seller.
-
0BEDS
-
0.69ACRES
-
0BATHS
-
01/2 BATHS
School Information
Description
Ready To Build. Level 3 Soil Tests complete. Site Plan and 3-Bedroom 2.5 Bathroom 2-Story 2,440 Square Feet Home Plan available, or Sellers can built for you (see alternative Single Family Home Listing for details) or bring your own plan and/or builder. Easy build lot within minutes of the main gate and all amenities. There are zero new construction homes in Big Canoe priced under $795K. Our floorplan maximizes space utilization and lot orientation with a view down a valley with seasonal spring. Big Canoe is located just 90 minutes north of Atlanta and nestled in the foothills of the Appalachian Mountain Range, and is teaming with amenities including a 27-Hole Golf Course and Clubhouse, three Lakes and a Marina, a Beach Club, Swimming Pools, a Sandy Beach, Fishing, numerous Parks & Trails, and more. The Marina rents electric pontoon boats and the lake is stocked with fresh trout. The community also provides numerous court sports options, including tennis, pickleball, and bocce, ensuring ample opportunities for recreation and social interaction, while the wellness center provides state-of-the-art fitness equipment and a spa. The newly renovated multimillion-dollar clubhouse serves as a central hub for dining and events. Nearby places to visit of note: Historic Downtown Jasper, Gibbs Gardens, Cairn View Winery, Fainting Goat Vineyards & Winery, B.J. Reece Orchards, and Amicalola Falls. This is a great opportunity to build and own a home in Big Canoe. Ideal for permanent or 2nd home and/or recreational investment property. Listing Agent related to Seller.
Related Properties
© 2026 Georgia Multiple Listing Service, Inc. All rights reserved. The data relating to real estate for sale or lease on this web site comes in part from GAMLS. Real estate listings held by brokerage firms other than Team Reign | Give Back Real Estate | eXp Realty are marked with the GAMLS logo or an abbreviated logo and detailed information about them includes the name of the listing broker. IDX information is provided exclusively for consumers' personal, non-commercial use and may not be used for any purpose other than to identify prospective properties consumers may be interested in purchasing. Information is deemed reliable but is not guaranteed accurate by GAMLS or Team Reign | Give Back Real Estate | eXp Realty. Data last updated: 2026-02-16T00:09:13.747.